Potřebujete poradit? Volejte +420 725 769 685

pozadí

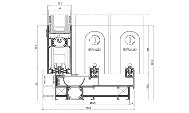
Procural SLIDING 600TT EVO

Systém je určen k výrobě exteriérových tepelně izolovaných posuvných oken nebo posuvných segmentů, např. pro opláštění balkonů a lodžií.

  • minimální šířka středového sloupku 37 mm - štíhlá a pevná konstrukce
  • systémové kování Ponzio
  • usazovací a kartáčové těsnění
  • úzké propojení s ostatními systémy Ponzio
  • možnost provedení rohových spojení pod úhlem 90° nebo 45°.
  • možnost použití speciálního kování pro výrobu vertikálně výsuvných oken.
  • možné řešení uschované ve zdi
  • Hliníkové profily
    EN AW-6060 T66 dle PN-EN 573-3 stan T66 dle PN-EN 515 Al Mg Si 0,5 F22 podle normy DIN 1725 T1, DIN 17615 T1
  • Těsnění
    Vyrobeno ze syntetického kaučuku EPDM podle normy 7863 a dle prováděcí normy ISO 3302-01, E2.
  • Hloubka křídla
    46 mm
  • Maximální rozměry křídla
    L 2000 x H 3000 mm
  • Maximální hmotnost křídla
    220 kg
  • Výplně
    Mnohonásobné zasklení nebo neprůhledné panely o tloušťce: 26-30 mm
  • Vodotěsnost
    třída 7A
  • Odolnost proti zatížení větrem
    třída C3/B3
  • Metody dokončení povrchu
    Práškové lakování polyesterovými barvami splňujícími požadavky Qualicoat, výběr z barev RAL; přírodní a barevné eloxování - splňující požadavky Qualanod; lakování na dřevodekor - povrchová úprava splňuje vysoké antikorozní požadavky.
  • Osvědčení a certifikáty kvality
    počáteční zkoušky podle PN - EN 14351-1 + A1
  • Propustnost vzduchu
    třída 4
  • Hloubka rámu
    73/95,5 mm pro dvoukolejnicový,, 131,5/153,5 mm pro tříkolejnicový
  • Tepelná izolace
    Uf od 3,1 W/m2K, Uw = 1,5 W/m2K (L 2400 x H 2400 mm, Ug = 1,0 W/m2K, dvojsklo).


Nezávazná kalkulace produktu Procural SLIDING 600TT EVO

Odesláním formuláře souhlasíte se zásadami ochrany osobních údajů.

Od návrhu po montáž

V případě, že si kvalitu našich produktů a prací budete chtít ověřit, rádi Vám předáme kontakty na naše největší akce, případně je s Vámi vybranými zástupci prohlédneme.

Svým klientům pomocí programu komplexně zpracujeme zakázku od kalkulace ceny, přesného zaměření, provedení montáže a souvisejících prací v dohodnutém termínu. Dále nabízíme širokou škálu doplňků k dosažení maximální spokojenosti zákazníka jako jsou interiérové žaluzie, sítě proti hmyzu, výběr klik, barevných provedení oken a dveří, samozřejmostí se již staly vnitřní a vnější parapetní desky a další prvky stínící techniky. Našimi zákazníky jsou majitelé bytů, rodinných domků, bytových domů, firem i velkých panelových domů.

Provádíme profesionálně tyto montáže:

Nezávazná kalkulace
ARSY line - tvorba webových stránek a eshopů