Potřebujete poradit? Volejte +420 725 769 685

pozadí

Procural PF 152

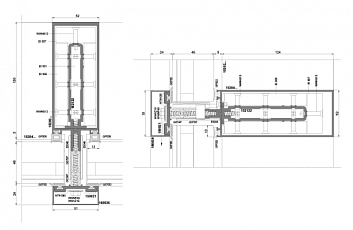
Sloupkově-příčkový systém prosklených fasád PF 152 s požárně odolnou konstrukcí.

Systém obdržel klasifikaci požární odolnosti pro prosklené fasády v plné konfiguraci. Po zkouškách a po zahřívání na vnější a vnitřní straně byl zařazen do třídy EI 60 a EI 30.

V systému mohou být provedeny protipožární fasádní mezipatrové pásy prosklenénebo neprůzračné. Jako průzračná výplň může být použito sklo s ohnivzdornou třídou EI 30 nebo EI 60 ( jako jedno či dvoj-, troj- sklo) většiny značek dostupných na trhu.

Vnitřní hliníkové výztužné profily s ohnivzdornými vložkami se speciálními konektory příčka - sloup poskytuje únosnost konstrukce v případě požáru. Expandování pásky chrání termické vložky a utěsňuje spoje mezi konstrukcí a sklem nebo jinými neprůhlednými výplněmi, které jsou součástí protipožárního odporu a izolace. Je možné vyrobit konstrukci fasády s ohnivzdornými dveřmi jak jednokřídlé tak dvoukřídlé.

  • Osvědčení a certifikáty kvality
    561/10/RO3NP


Nezávazná kalkulace produktu Procural PF 152

Odesláním formuláře souhlasíte se zásadami ochrany osobních údajů.

Od návrhu po montáž

V případě, že si kvalitu našich produktů a prací budete chtít ověřit, rádi Vám předáme kontakty na naše největší akce, případně je s Vámi vybranými zástupci prohlédneme.

Svým klientům pomocí programu komplexně zpracujeme zakázku od kalkulace ceny, přesného zaměření, provedení montáže a souvisejících prací v dohodnutém termínu. Dále nabízíme širokou škálu doplňků k dosažení maximální spokojenosti zákazníka jako jsou interiérové žaluzie, sítě proti hmyzu, výběr klik, barevných provedení oken a dveří, samozřejmostí se již staly vnitřní a vnější parapetní desky a další prvky stínící techniky. Našimi zákazníky jsou majitelé bytů, rodinných domků, bytových domů, firem i velkých panelových domů.

Provádíme profesionálně tyto montáže:

Nezávazná kalkulace
ARSY line - tvorba webových stránek a eshopů