Potřebujete poradit? Volejte +420 725 769 685

pozadí

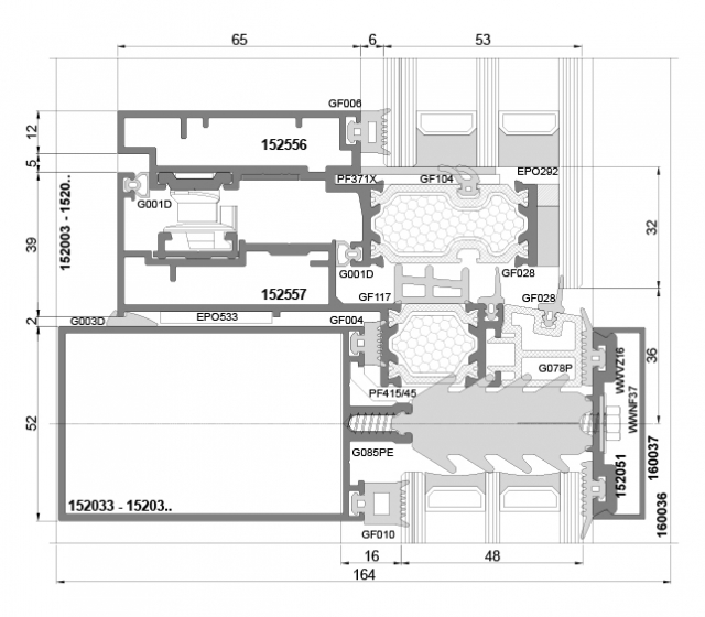
Procural PF 152 HI Passive

Systém prosklených sloupkově-příčkových fasád PF 152 s lepší tepelnu izolací, nejčastěji používaný v energeticky úsporných budovách.Díky speciální konstrukci termického dílu, který svým tvarem a prostorem jež vyplňuje podskelní prostory, dosahuje výrazného vyplepšení tepelně technických parametrů celé konstrukce. Vnitřní konstrukce rámu zároveň umožňuje odvod kondenzátu ven.Tepelné vlastnosti umožňují dosažení součinitele prostupu tepla Uf od 0,6 W/m2K ( při vyplnění o tloušťce 48 mm).

  • možnost použít aplikační řešení pro pásy překlad - parapet, které jsou ve třídě EI 60
  • možnost zakomponování různých typů externích dekoračních prvků
  • možnost vytvoření verzí 'horizontální' nebo 'vertikální' linie
  • ohýbaní profilů
  • osazení výplní o tloušťce: 38-66 mm
  • Hliníkové profily
    EN AW-6060 podle PN-EN 573-3 stav T66 dle PN-EN 515 Al Mg Si 0,5 F22 dle normy DIN 1725 T1, DIN 17615 T1.
  • Těsnění
    Ze syntetické pryže EPDM dle normy 7863 a prováděcí normy dle ISO 3302-01, E2.
  • Výplně
    Jednoduché nebo vícenásobné zasklení s jakýmkoliv druhem skla nebo neprůhledným panelem o tl. 38-56mm.
  • Provzdušnost
    AE 1200
  • Tepelně izolační vlastnosti
    Rámový součinitel prostupu tepla Uo = 0,67 W/m2K ve verzi s termikem šířky 48 mm.
  • Osvědčení a certifikáty kvality
    vstupní zkoušky typu dle PN-EN 13830 - certifikát institutu PassivHaus Institut v Darmstadu
  • Kování
    Pouze od renomovaných firem: Fapim, Geze, Security Style, Roto, Dorma, Esco, apod.
  • Tloušťka výplně
    38-66
  • Uf (W/M2K)
    1.0
  • Ucw / Uw (W/m2K)
    0,62


Nezávazná kalkulace produktu Procural PF 152 HI Passive

Odesláním formuláře souhlasíte se zásadami ochrany osobních údajů.

Od návrhu po montáž

V případě, že si kvalitu našich produktů a prací budete chtít ověřit, rádi Vám předáme kontakty na naše největší akce, případně je s Vámi vybranými zástupci prohlédneme.

Svým klientům pomocí programu komplexně zpracujeme zakázku od kalkulace ceny, přesného zaměření, provedení montáže a souvisejících prací v dohodnutém termínu. Dále nabízíme širokou škálu doplňků k dosažení maximální spokojenosti zákazníka jako jsou interiérové žaluzie, sítě proti hmyzu, výběr klik, barevných provedení oken a dveří, samozřejmostí se již staly vnitřní a vnější parapetní desky a další prvky stínící techniky. Našimi zákazníky jsou majitelé bytů, rodinných domků, bytových domů, firem i velkých panelových domů.

Provádíme profesionálně tyto montáže:

Nezávazná kalkulace
ARSY line - tvorba webových stránek a eshopů