Potřebujete poradit? Volejte +420 725 769 685

pozadí

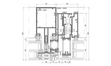
Procural PF 152 ESG

Systém je určen pro výrobu prosklených fasád a jiných prostorových konstrukcí.

  • z vnější strany jednolitá hladká skleněná stěna dělená strukturou svislých a vodorovných linií o šířce 22 mm při použití silikonového spoje nebo 28 mm s použitím těsnění v meziskelním prostoru
  • sloupko-příčková konstrukce systému Ponzio PF152 se širokou škálou profilů
  • možnost použití výplní v podobě oken systému Ponzio
  • možnost zhotovení výklopných oken vedle sebe, které se otevírají nezávisle na sobě
  • možnost použití trojskel (až do tloušťky 70 mm)
  • ohýbání profilů
  • Hliníkové profily
    EN AW-6060 T66 dle PN-EN 573-3 stan T66 dle PN-EN 515 Al Mg Si 0,5 F22 podle normy DIN 1725 T1, DIN 17615 T1
  • Těsnění
    Vyrobeno ze syntetického kaučuku EPDM v souladu s normou 7863 a v souladu s prováděcí normou ISO 3302-01, E2
  • Výplně
    Jednoduché či mnohonásobné zasklení nebo neprůhledné panely : pro fasády 28 - 70 mm, pro okna 24 - 60 mm
  • Vodotěsnost
    třída RE 2550
  • Odolnost proti zatížení větrem
    třída 2400 Pa, E3600 Pa
  • Metody dokončení povrchu
    Práškové lakování polyesterovými barvami splňujícími požadavky Qualicoat, výběr z barev RAL; přírodní a barevné eloxování - splňující požadavky Qualanod; lakování na dřevodekor - povrchová úprava splňuje vysoké antikorozní požadavky
  • Osvědčení a certifikáty kvality
    počáteční zkouška typu podle PN-EN 13830
  • Propustnost vzduchu
    třída AE 1200
  • Tepelná izolace
    Uf od 1,3 W/m2K, Ucw/Uw = 0,64 W/m2K (vypočítané pro prvek s rozměry: L 1200 x H 2500 mm Ug = 0,5 W/m2K, trojsklo).
  • Odolnost vůči nárazu
    třída E5/I5


Nezávazná kalkulace produktu Procural PF 152 ESG

Odesláním formuláře souhlasíte se zásadami ochrany osobních údajů.

Od návrhu po montáž

V případě, že si kvalitu našich produktů a prací budete chtít ověřit, rádi Vám předáme kontakty na naše největší akce, případně je s Vámi vybranými zástupci prohlédneme.

Svým klientům pomocí programu komplexně zpracujeme zakázku od kalkulace ceny, přesného zaměření, provedení montáže a souvisejících prací v dohodnutém termínu. Dále nabízíme širokou škálu doplňků k dosažení maximální spokojenosti zákazníka jako jsou interiérové žaluzie, sítě proti hmyzu, výběr klik, barevných provedení oken a dveří, samozřejmostí se již staly vnitřní a vnější parapetní desky a další prvky stínící techniky. Našimi zákazníky jsou majitelé bytů, rodinných domků, bytových domů, firem i velkých panelových domů.

Provádíme profesionálně tyto montáže:

Nezávazná kalkulace
ARSY line - tvorba webových stránek a eshopů